| https://veliki.com.ua/dir_lady_bikes.htm |

Начать новую тему Ответить на тему На страницу Пред.  1, 2, 3, 4, 5, 6, Bce  След.
Автор Сообщение
СообщениеДобавлено: 24.04.2016 01:07 

Сообщения: 92
Город: Лозовая
Пол: Муж
Возраст: 32
Зарегистрирован:17.06.2014
1eonid писал(а):
Или я что-то упускаю либо неправильно понимаю?

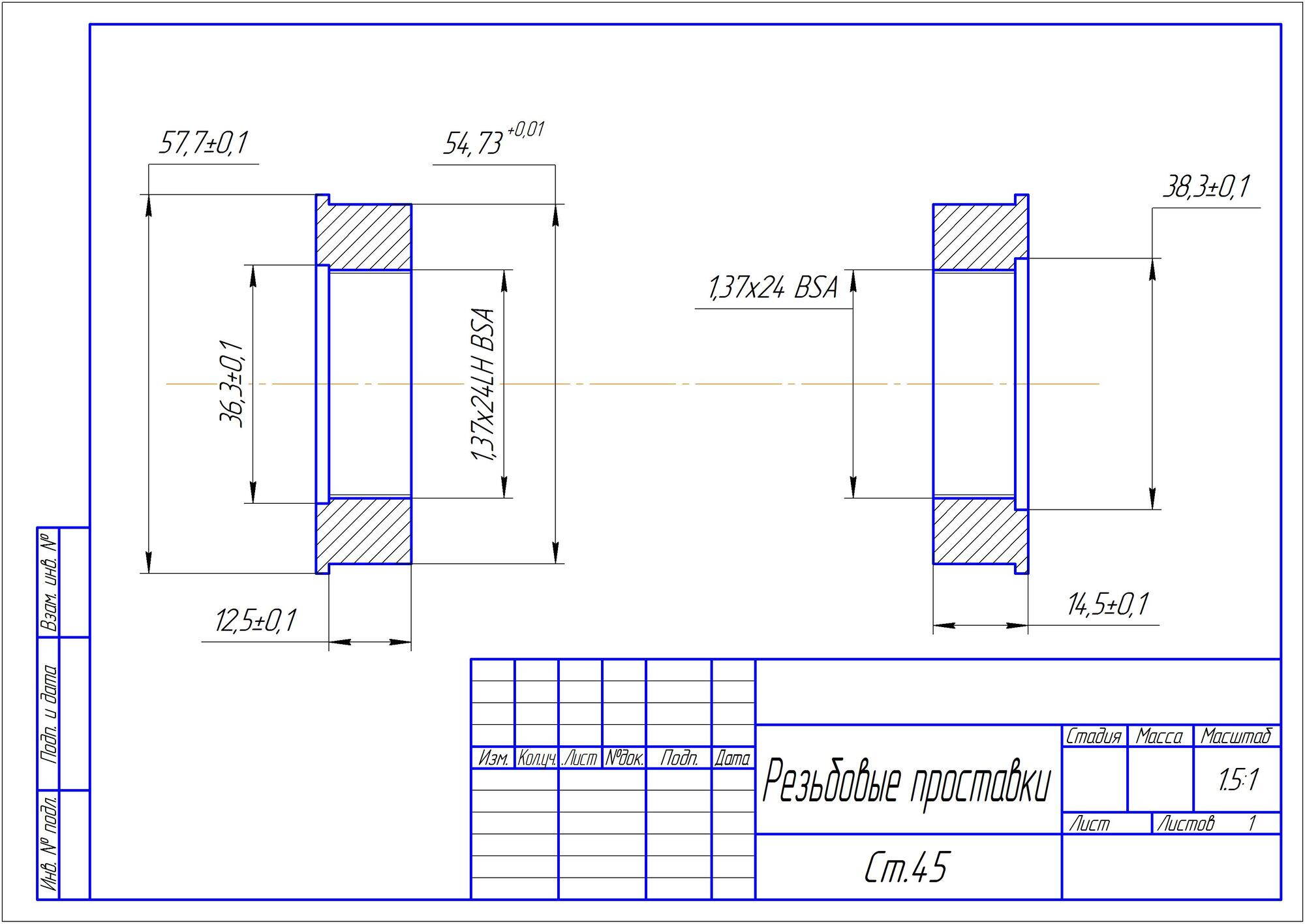
Просто покупаете круглую заготовку, берете каретку(образец резьбы), чертеж(хотя-бы эскиз), и идете к токарю.

По быстрому набросал чертеж как делал бы я. Что на нем, надеюсь, понятно: внешний диаметр проставки = внутренний диаметр кареточного стакана+3...4 сотки натяга, внутри резьба 1.37х24 BSA, причем с правой стороны(со стороны звезд) она правая, с левой, соответственно, левая. Длина резьбы в проставке = 12.5 мм(себе так делал). Так же есть упорный бортик, дальше которого проставка не запрессуется в раму, ну и соответственно диаметр для посадки корпуса каретки для компенсации толщины этого бортика(размеры брал для BB-UN26). общая длина -14,5 мм(т.е. толщина бортика - 2 мм). Материал - ст. 45.
ВАЖНО: Размер кареточного стакана брал из вашего первого сообщения, и если таки надумаете делать этим способом, то настоятельно рекомендую как можно точнее его перемерить, чтоб посадка с натягом в итоге не получилась посадкой с зазором.
Ну и из чего рама сделана? Если стальная, то вполне можно дать натяг и 5 соток.
Прессовать потом эти простаки в раму молотком через медную пластина\кругляк, смазав предварительно сопрягающиеся поверхности неразъемным фиксатором цилиндрических соединений.


Вложения:
Резьбовые проставки 57мм.jpg
Резьбовые проставки 57мм.jpg [ 503.32 КБ | Просмотров: 2999 ]

Вернуться к началу
shoppage  personalpage P  
 
СообщениеДобавлено: 24.04.2016 08:59 
Аватара пользователя

Сообщения: 3757
Город: Южный Урал
Пол: Муж
Возраст: 61
Зарегистрирован:17.04.2014
1eonid писал(а):
DesignerMM писал(а):
Цепь надо подтягивать периодически. Для этого и эксцентрик.

Натяжка цепи меньшая из бед - ставим натяжитель и все зашибись.


Тогда во-первых у планетарки не будет работать ножной тормоз и понадобится ставить на заднее колесо ручной, во-вторых торчащий натяжитель крайне вредно сказывается на проходимости велосипеда: нужно будет при езде опасаться самых незначительных прутиков могущих попасть в натяжитель, в-третьих натяжитель сильно ускоряет износ цепи, и в-четвертых очень затруднится отмывание велосипеда от грязи.

_________________
Складной грузовоз: http://xt.ht/phpbb/viewtopic.php?f=31&t=226335
Устройство задней втулки "Школьника": viewtopic.php?f=31&t=323801
Белорусский "Аист": viewtopic.php?f=31&t=338736


Вернуться к началу
shoppage  personalpage P  
 
СообщениеДобавлено: 24.04.2016 13:15 
Аватара пользователя

Сообщения: 714
Город: Ukraine
Пол: Муж
Зарегистрирован:19.03.2016
Пафнутий писал(а):
Вот есть же приливы на нижней части каретки, в которых вполне можно просверлить два отверстия и нарезать резьбу для болтов. Почему их не использовать?


+1. Самый лучший способ.

_________________
Отдых в Крыму,
турпоездки в Крым, граница без очереди


Вернуться к началу
shoppage  personalpage P  
 
СообщениеДобавлено: 24.04.2016 15:46 
Аватара пользователя

Сообщения: 1676
Город: Салтовка
Пол: Муж
Возраст: 51
Зарегистрирован:14.08.2009
1eonid писал(а):
Думается мне таки проточить стакан

Если найдете, где смогут сделать эту операцию за приемлемые деньги (в чем я очень сильно сомневаюсь), поделитесь координатами.

_________________
Шарики для втулок
Изготовление велоинструмента
Подшипники для велосипедов


Вернуться к началу
shoppage  personalpage P  
 
СообщениеДобавлено: 24.04.2016 15:48 
Аватара пользователя

Сообщения: 1676
Город: Салтовка
Пол: Муж
Возраст: 51
Зарегистрирован:14.08.2009
Seriy{tan} писал(а):
настоятельно рекомендую как можно точнее его перемерить, чтоб посадка с натягом в итоге не получилась посадкой с зазором

Это очень важный момент! Мерять надо не штангелем, хоть и цифровым, а только нутромером, чтобы понять профиль отверстия.

_________________
Шарики для втулок
Изготовление велоинструмента
Подшипники для велосипедов


Вернуться к началу
shoppage  personalpage P  
 
СообщениеДобавлено: 25.04.2016 11:40 

Сообщения: 2099
Город: Харьков
Пол: Муж
Возраст: 36
Зарегистрирован:15.04.2010
Kochegar писал(а):
1eonid писал(а):
DesignerMM писал(а):
Цепь надо подтягивать периодически. Для этого и эксцентрик.

Натяжка цепи меньшая из бед - ставим натяжитель и все зашибись.


Тогда во-первых у планетарки не будет работать ножной тормоз и понадобится ставить на заднее колесо ручной, во-вторых торчащий натяжитель крайне вредно сказывается на проходимости велосипеда: нужно будет при езде опасаться самых незначительных прутиков могущих попасть в натяжитель, в-третьих натяжитель сильно ускоряет износ цепи, и в-четвертых очень затруднится отмывание велосипеда от грязи.

Планетарка без ножного тормоза - иначе о натяжителе не говорил бы, совсем за идиота меня держите) Что касается проходимости - извините, бред. 90% МТБ ездят по всяким дебрях с задними переключателями значительно более крупными и имеющими больше шарниров, чем простой натяжитель. И критичных проблем при этом не возникает. - так от чего с натяжителем должны возникнуть проблемы?

_________________
______________________________________________________________
Шея - это вынос мозга.


Вернуться к началу
shoppage  personalpage P  
 
СообщениеДобавлено: 25.04.2016 11:43 

Сообщения: 2099
Город: Харьков
Пол: Муж
Возраст: 36
Зарегистрирован:15.04.2010
Буль писал(а):
Seriy{tan} писал(а):
настоятельно рекомендую как можно точнее его перемерить, чтоб посадка с натягом в итоге не получилась посадкой с зазором

Это очень важный момент! Мерять надо не штангелем, хоть и цифровым, а только нутромером, чтобы понять профиль отверстия.

Буль, Seriy{tan}, спасибо за подсказку, тоже думал об этом. Уже первичные замеры штангелем показали, что стакан потерял свою цилиндрическую форму - думается, придется растачивать его весь под 55 мм. Не знаю только как и где это сделать так, чтобы соблюсти соосность и не сместить ось каретки от горизонтали.

_________________
______________________________________________________________
Шея - это вынос мозга.


Вернуться к началу
shoppage  personalpage P  
 
СообщениеДобавлено: 25.04.2016 11:48 

Сообщения: 2099
Город: Харьков
Пол: Муж
Возраст: 36
Зарегистрирован:15.04.2010
Seriy{tan} писал(а):
1eonid писал(а):
Или я что-то упускаю либо неправильно понимаю?

Просто покупаете круглую заготовку, берете каретку(образец резьбы), чертеж(хотя-бы эскиз), и идете к токарю.

По быстрому набросал чертеж как делал бы я. Что на нем, надеюсь, понятно: внешний диаметр проставки = внутренний диаметр кареточного стакана+3...4 сотки натяга, внутри резьба 1.37х24 BSA, причем с правой стороны(со стороны звезд) она правая, с левой, соответственно, левая. Длина резьбы в проставке = 12.5 мм(себе так делал). Так же есть упорный бортик, дальше которого проставка не запрессуется в раму, ну и соответственно диаметр для посадки корпуса каретки для компенсации толщины этого бортика(размеры брал для BB-UN26). общая длина -14,5 мм(т.е. толщина бортика - 2 мм). Материал - ст. 45.
ВАЖНО: Размер кареточного стакана брал из вашего первого сообщения, и если таки надумаете делать этим способом, то настоятельно рекомендую как можно точнее его перемерить, чтоб посадка с натягом в итоге не получилась посадкой с зазором.
Ну и из чего рама сделана? Если стальная, то вполне можно дать натяг и 5 соток.
Прессовать потом эти простаки в раму молотком через медную пластина\кругляк, смазав предварительно сопрягающиеся поверхности неразъемным фиксатором цилиндрических соединений.

С чертежами и замерами всё понятно, вопрос в другом - как нарезать резьбу при условии что ни у меня, ни у токаря метчика для нарезки резьбы в каретке нет? Знаю у кого можно нарезать, вопрос только как фиксировать проставку при нарезке резьбы? Взять заготовку и резать в ней или сделать готовые проставки, установить их в раму и пытаться нарезать прямо в раме с риском провернуть проставку? Рама люминька.

_________________
______________________________________________________________
Шея - это вынос мозга.


Вернуться к началу
shoppage  personalpage P  
 
СообщениеДобавлено: 25.04.2016 11:52 

Сообщения: 2099
Город: Харьков
Пол: Муж
Возраст: 36
Зарегистрирован:15.04.2010
Буль писал(а):
1eonid писал(а):
Думается мне таки проточить стакан

Если найдете, где смогут сделать эту операцию за приемлемые деньги (в чем я очень сильно сомневаюсь), поделитесь координатами.

Пропустил сначала это сообщение) Насколько я понимаю, если даже Вы не знаете где можно хорошо и ровно проточить кареточный стакан - то значит я придумал фантастику и надо работать с таким стаканом, какой он есть сейчас...

_________________
______________________________________________________________
Шея - это вынос мозга.


Вернуться к началу
shoppage  personalpage P  
 
СообщениеДобавлено: 25.04.2016 12:50 
Аватара пользователя

Сообщения: 219
Город: Новомосковск
Пол: Муж
Возраст: 33
Зарегистрирован:14.04.2012
Я так розумію, що токарь може нарізати різьбу, зажавши деталь в патроні, відразу після проточки.


Вернуться к началу
shoppage  personalpage P  
 
СообщениеДобавлено: 25.04.2016 13:09 
Аватара пользователя

Сообщения: 3923
Город: Sed.lg.ua
Пол: Муж
Возраст: 52
Зарегистрирован:04.08.2015
1eonid

в конечном итоге какой вал каретки требуется? под квадрат или что-то другое?

_________________
Мне пофиг, кто какие стенки из какого материала будет откладывать. (с)


Вернуться к началу
shoppage  personalpage P  
 
СообщениеДобавлено: 25.04.2016 14:05 

Сообщения: 92
Город: Лозовая
Пол: Муж
Возраст: 32
Зарегистрирован:17.06.2014
1eonid писал(а):
С чертежами и замерами всё понятно, вопрос в другом - как нарезать резьбу при условии что ни у меня, ни у токаря метчика для нарезки резьбы в каретке нет? Знаю у кого можно нарезать, вопрос только как фиксировать проставку при нарезке резьбы? Взять заготовку и резать в ней или сделать готовые проставки, установить их в раму и пытаться нарезать прямо в раме с риском провернуть проставку? Рама люминька.

Открою вам большой секрет - резьбу можно сделать как минимум 3 разными способами.)) Можно метчиком, можно резьбу накатать, а можно выточить резьбовым резцом с нужным профилем.
В данном случае техпроцесс такой: Заготовка зажимается в патрон токарного, протачивается внутренний диаметр под резьбу и резьбовым резцом точится сама резьба(но токарю нужен образец), затем точатся все внешние размеры. Затем деталь отрезается от заготовки, зажимается в патрон и производится торцовка и снимается фаска под запрессовку.
Что касается проточки стакана - операция не сказать что сильно дорогая, на фрезере можно сделать, но вот исполнителя еще придется поискать. Гораздо проще в данном случае сделать проставки длиннее, чтоб при запрессовке они захватывали ту часть стакана, которую не раздрочил кривой эксцентрик. Т.е. вместо размера 12,5 взять например 30 мм. Но это если с завода кареточный стакан проточен в один размер.
Если рама люминь, то лучше дать таки 3 сотки натяга, а еще лучше предварительно обсудить этот вопрос с токарем.
Если надо, могу дать контакты одного харьковского токаря, берет он дорого, но делает что надо(в сотку могет).


Вернуться к началу
shoppage  personalpage P  
 
СообщениеДобавлено: 25.04.2016 14:59 

Сообщения: 2099
Город: Харьков
Пол: Муж
Возраст: 36
Зарегистрирован:15.04.2010
Maxim_Sed писал(а):
1eonid

в конечном итоге какой вал каретки требуется? под квадрат или что-то другое?

Каретка и система Hollowtech II.

_________________
______________________________________________________________
Шея - это вынос мозга.


Вернуться к началу
shoppage  personalpage P  
 
СообщениеДобавлено: 25.04.2016 15:03 

Сообщения: 2099
Город: Харьков
Пол: Муж
Возраст: 36
Зарегистрирован:15.04.2010
Seriy{tan} писал(а):
1eonid писал(а):
С чертежами и замерами всё понятно, вопрос в другом - как нарезать резьбу при условии что ни у меня, ни у токаря метчика для нарезки резьбы в каретке нет? Знаю у кого можно нарезать, вопрос только как фиксировать проставку при нарезке резьбы? Взять заготовку и резать в ней или сделать готовые проставки, установить их в раму и пытаться нарезать прямо в раме с риском провернуть проставку? Рама люминька.

Открою вам большой секрет - резьбу можно сделать как минимум 3 разными способами.)) Можно метчиком, можно резьбу накатать, а можно выточить резьбовым резцом с нужным профилем.
В данном случае техпроцесс такой: Заготовка зажимается в патрон токарного, протачивается внутренний диаметр под резьбу и резьбовым резцом точится сама резьба(но токарю нужен образец), затем точатся все внешние размеры. Затем деталь отрезается от заготовки, зажимается в патрон и производится торцовка и снимается фаска под запрессовку.
Что касается проточки стакана - операция не сказать что сильно дорогая, на фрезере можно сделать, но вот исполнителя еще придется поискать. Гораздо проще в данном случае сделать проставки длиннее, чтоб при запрессовке они захватывали ту часть стакана, которую не раздрочил кривой эксцентрик. Т.е. вместо размера 12,5 взять например 30 мм. Но это если с завода кареточный стакан проточен в один размер.
Если рама люминь, то лучше дать таки 3 сотки натяга, а еще лучше предварительно обсудить этот вопрос с токарем.
Если надо, могу дать контакты одного харьковского токаря, берет он дорого, но делает что надо(в сотку могет).

Ага, теперь понял как нужно делать, спасибо! Узнаю у знакомого токаря сможет ли нарезать резьбу такого размера резцом - если нет, тогда буду стучаться в личку, ок?)

И ещё подскажите пожалуйста - я правильно понимаю, что под определенный шаг резьбы используется определенный резец? Или одним резцом можно нарезать в определенных пределах резьбу с разным шагом? Просто если под определенный шаг нужен конкретный резец - есть сомнения, что у токаря будет резец под 1,37х24, думаю нарезать тогда под хвзшные М35Х1 витков восемь-десять и вкрутить туда современную чашку. Благо, на таком количестве витков разница в шаге не должна вызвать проблем со вкручиванием чашки.

_________________
______________________________________________________________
Шея - это вынос мозга.


Последний раз редактировалось 1eonid 25.04.2016 15:12, всего редактировалось 1 раз.

Вернуться к началу
shoppage  personalpage P  
 
СообщениеДобавлено: 25.04.2016 15:06 

Сообщения: 2607
Изображения: 35
Город: Харьков ХГ
Пол: Муж
Возраст: 40
Зарегистрирован:06.05.2012
Seriy{tan}
Как нарезать резьбу может сказать и ПТУшник, да и проточить стакан тоже.
Вопрос в том что резьба нифига не простая, мало у кого есть такой набор
метчиков, и не всякий токарный может такую резьбу нарезать.
Дальше проблемы с проточкой стакана, это либо спец инструмент, которого
возможно в стране и нет, либо на фрезере, нужно пытаться базироваться по
целой части стакана, тут нужен рукастый фрезеровщик и не маленький фрезер.

_________________
Gary Fisher Custom


Вернуться к началу
shoppage  personalpage P Персональный альбом  
 
Показать сообщения за:  Поле сортировки  
Начать новую тему Ответить на тему На страницу Пред.  1, 2, 3, 4, 5, 6, Bce  След.


Вы не можете начинать темы
Вы не можете отвечать на сообщения
Вы не можете редактировать свои сообщения
Вы не можете удалять свои сообщения
Вы не можете добавлять вложения

Найти:
Перейти:  
  © Mishael 2003-2025, да, бля - ми ще живі
Наши друзья: Рыбалка в Хмельницком | Рыбалка в Полтаве
Мобильный вид

[ Time : 0.338s | 28 Queries | GZIP : On ]
Reputation System ©'